A vendre
Maison 4 pièces 120 m²
Saint-Pierre467 000 €
Annonce agence - Publié par Import E.
Partager sur les réseaux
Général
- A
- B
- C
- D
- E
- F
- G
L'avis du professionnel
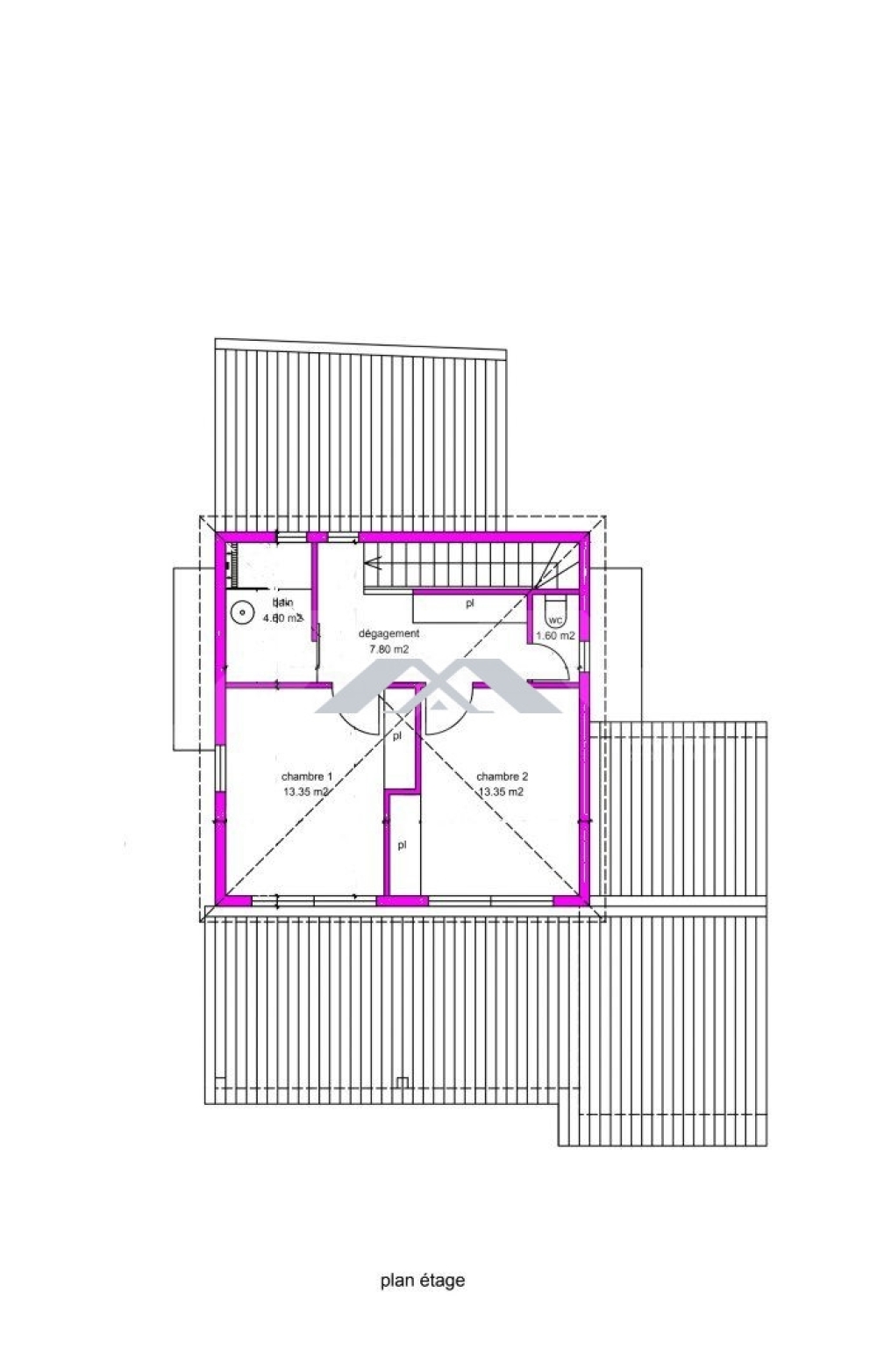
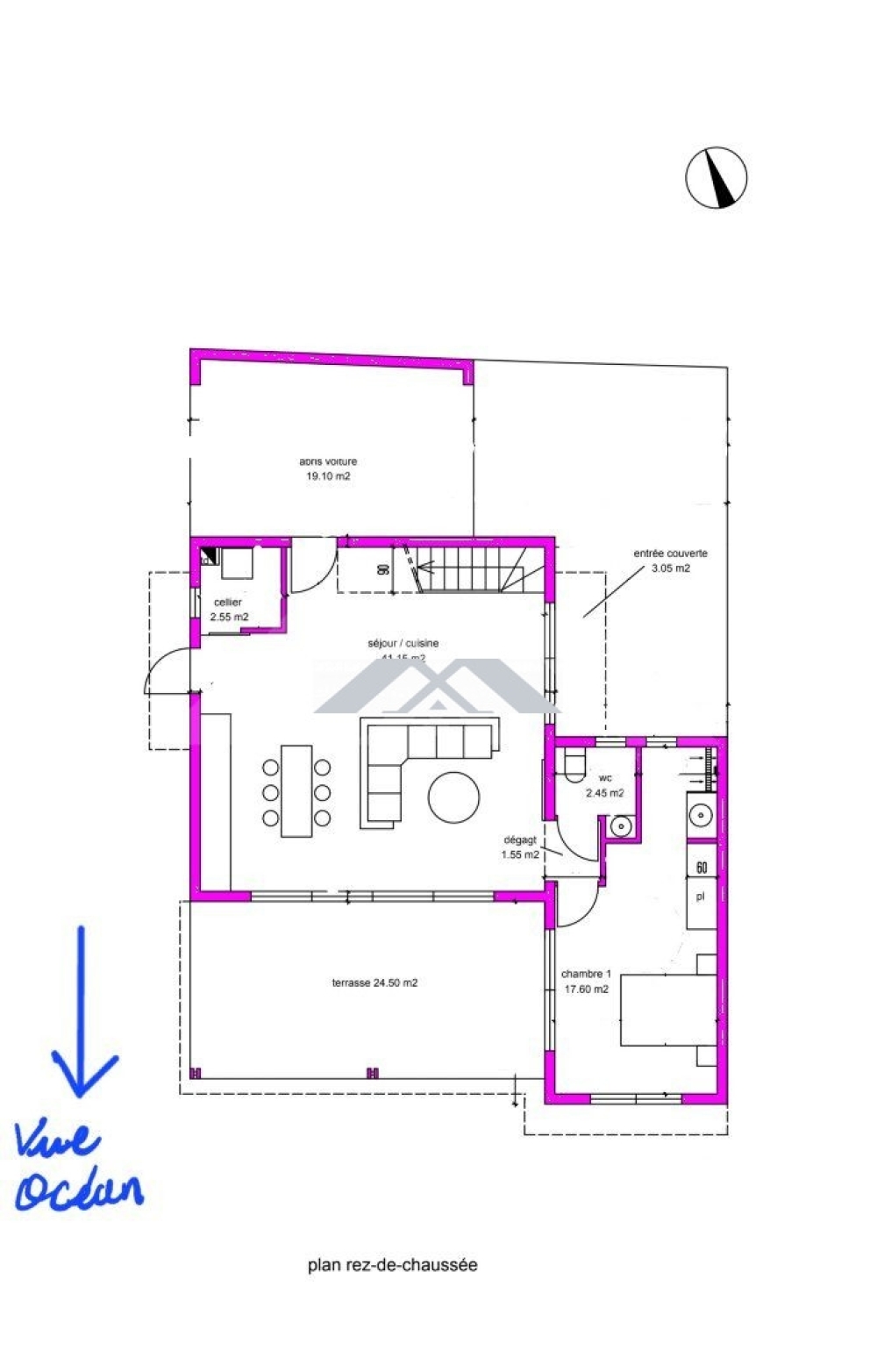
MAXImmo vous propose dans le secteur prisé de la Cafrine, proche de Grand Bois et des commodités. Au fond d'une impasse cette superbe villa neuve conçue par un architecte avec sa vue océan. Elle est construite sur deux niveaux, au rez-de-chaussée, cuisine, séjour d'environ 44 m² , wc indépendants, suite parentale avec douche italienne d'environ 18 m². Séjour et suite parentale ouverts sur une grande terrasse couverte d'environ 25 m². A l'étage, deux chambres avec placard intégré d'environ 13 m² chacune, dégagement avec placard également douche italienne + wc séparé. A cela vous rajoutez un abri voiture d'environ 20 m² . La maison sera vendue avec volets roulants pour les baies vitrées. Garantie décennale. Livraison 3ème trimestre 2026. Rapport qualité-prix imbattable. Frais de notaire réduits. Éligible défis Girardin IS.
Prix TTC et Honoraires à charge vendeur TTC Mandat n° 12453 Réseau MAXImmo - Plus d'informations et consultation de nos tarifs sur www.maximmo.re Les informations sur les risques auxquels ce bien est exposé sont disponibles sur le site Géorisques : www.georisques.gouv.fr'
Honoraires à la charge du vendeur. Non soumis au DPE. Les informations sur les risques auxquels ce bien est exposé sont disponibles sur le site Géorisques : georisques.gouv.fr.
Votre conseiller MAXImmo : Ingrid FRANCE
Agent commercial (Entreprise individuelle)
Avantages
- Balcon
Vivre à Saint-Pierre
Pas d'actualités pour le moment
Découvrez les avis des habitants de Saint-Pierre (97410,97432)
"C'est une ville agréable qui est proche de tout et qui ne manque de rien. C'est le top !" Lire la suite...
"Ici chaque moment est savouré pleinement. Nous les Réunionnais, on sait profier de la vie à fond, et quelle vie !!" Lire la suite...
"La coté positif c'est qu'on mange très bien à Saint-Pierre. Tous les meilleurs restos sont ici selon moi, pas besoin d'aller voir ailleurs" Lire la suite...
"Le lagon de Saint-Pierre est un spectacle magique pour les yeux ! on en s'en lasse pas, même avec les années" Lire la suite...
"Le souci de cette ville je dirais que c'est la fluidité de la ciruculation qui laisse à désirer... malgré les efforts constants des autorités pour le..." Lire la suite...
Statistiques sur Saint-Pierre
84 077
22 997
874 h/km²
-
0 € / m²
70.3 %
* Source : INSEE