A vendre

Terrain 0 pièce 320 m²

Saint-Leu

209 600 €

Annonce agence - Publié par Import E.

Informations
Mis à jour 31 janv. 2026
Disponibilité Non précisé
Référence VT394-MEILLEURCONSEIL
Contact
Gestionnaire du bien Autre
N° de téléphone sarah.l@canda.re
Email -
Contacter l'annonceur
Prendre rendez-vous

Partager sur les réseaux

Général

Prix de vente 209 600 €
Ville Saint-Leu
Surface 320 m²
Toilette 262352057
Bilan énergetique
  • A
  • B
  • C
  • D
  • E
  • F
  • G

L'avis du professionnel

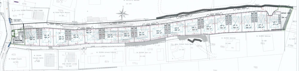
Sur la commune de Saint-Leu, lieudit Grand Fond, le lotissement 'LES PALMIERS', situé à 10 minutes de la plage est accessible par la route des Tamarins, en empruntant ensuite la D11 puis la D25 et enfin le chemin Mazeau sur la droite. Ce lotissement est composé de 17 parcelles viabilisées. L'altitude est comprise entre 245 m et 317 m.

L'agence MCI a le plaisir de vous proposer à la vente la parcelle dénommées 'LOT 06' d'une superficie constructible de 320 m² et offrant une splendide vue sur la mer.

Le lotissement est situé en zone UD du PLU de la commune de Saint-Leu.
L'emprise au sol autorisée est de 40%.
Implantation de la construction :
- retrait par rapport aux limites de la voie : 3.00 m
- retrait par rapport aux limites séparatives : 3.00 m
- mitoyenneté latérale possible sur 2 côtés sur une profondeur maxi de 10m.

Hauteur au faîtage : 6m maximum (en fonction de la pente du toit)
Hauteur à l'égout : 4m maximum
Clôture : 2,30 m maximum en façade et en mitoyenneté.

Règlement du lotissement :
- Une seule construction par parcelle est autorisée, à usage d'habitation.

Le raccordement des coffrets techniques à la construction et au tout à l'égout.
Prévoir une évacuation sur la parcelle par impluvium des eaux de pluie.

Alors, chers investisseurs, ne tardez pas à saisir cette occasion qui ne restera pas bien longtemps sur le marché de l'immobilier !

Les atouts :
-Quartier paisible et soigné
- Parcelle viabilisée
- Vuesur la mer
- Assainissement collectif

Prix de vente : 209 600 €
Honoraires d'agence inclus, à la charge de l'acquéreur.

Bien non soumis au DPE.

Les informations sur les risques auxquels ce bien est exposé sont disponibles sur le site Géorisques : www.georisques.gouv.fr

Pour plus d'informations ou visites, n'hésitez pas à contacter notre agence au 02 62 35 20 57 ou par e-mail : svce.administratif@canda.re

Monsieur Rudy CANDASSAMY - Agent commercial indépendant chez MCI, immatriculé au RSAC de Saint-Pierre (974) sous le numéro 2023AC00128.

Les informations sur les risques auxquels ce bien est exposé sont disponibles sur le site Géorisques : georisques.gouv.fr.

Votre conseiller Meilleur Conseil Immo : Rudy CANDASSAMY
Agent commercial (Entreprise individuelle)
RSAC 885 207 340

Avantages

  • Vue dégagée



Statistiques sur Saint-Leu

illustration nombre d'habitant

34 893

illustration nombre d'habitant

9 740

illustration nombre d'habitant

294 h/km²

illustration nombre d'habitant

-

illustration nombre d'habitant

0 € / m²

illustration nombre d'habitant

73.9 %

* Source : INSEE