A vendre
Terrain 0 pièce 438 m²
Tampon118 000 €
Annonce agence - Publié par Import E.
Partager sur les réseaux
Général
- A
- B
- C
- D
- E
- F
- G
L'avis du professionnel
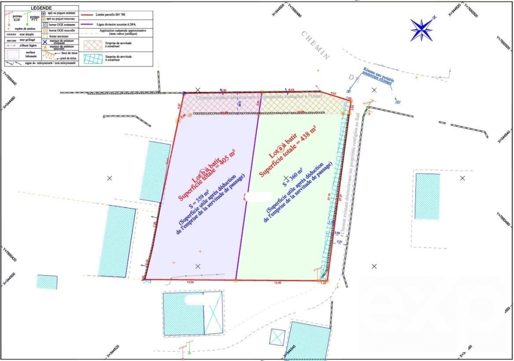
À découvrir sur le secteur calme et résidentiel de Pont d'Yves, au Tampon, cette belle parcelle plate de 438 m².
Située à environ 700 mètres d'altitude, elle offre un environnement paisible et la possibilité d'orienter votre future construction pour profiter d'une vue mer et montagne.
? Informations principales :
- Superficie : 438 m²
- Viabilisé
- Terrain plat, facile à aménager
- Zone Uc (PLU) :
- Emprise au sol non réglementée
- Hauteur des constructions : 9 m à l'égout du toit / 13 m au faîtage
- Annexes et dépendances : 3,5 m max
? Atouts du secteur :
Cadre calme et verdoyant
Bonne accessibilité
Idéal pour un projet de résidence principale ou locatif
? Possibilité d'investissement avec le dispositif Girardin à l'IS :
Le dispositif Girardin à l'IS permet de bénéficier d'un avantage fiscal significatif en réalisant une construction neuve destinée à la location.
Vous profitez ainsi d'un crédit ou d'une réduction d'impôt sur les sociétés, sous réserve de respecter les conditions de mise en location (durée, loyers plafonnés, ressources des locataires).
? Et pour faciliter vos démarches, nous pouvons également vous mettre en relation avec un professionnel compétent pour créer la société nécessaire à ce type d'investissement.
? Une opportunité rare de conjuguer projet immobilier, défiscalisation et accompagnement clé en main !
Honoraires à la charge du vendeur. Les informations sur les risques auxquels ce bien est exposé sont disponibles sur le site Géorisques : georisques.gouv.fr. Ce bien vous est proposé par un agent commercial (Entreprise individuelle).
Votre conseiller eXp Realty : José STANCA
Agent commercial (Entreprise individuelle)
RSAC 894206317 ST PIERRE
Avantages
- Vue dégagée
Vivre à Tampon
Pas d'actualités pour le moment
Découvrez les avis des habitants de Tampon (97418,97430)
"C'est le spot idéal pour les fans de randonnées. La ville elle-même est tranquille, mais je trouve que c'est cette tranquillité qui fait son charme" Lire la suite...
"C'est un peu en retraît mais on a vraiment tout ici , pas besoin de faire des kilomètres pour trouver tout ce dont on a besoin" Lire la suite...
"Cette proximité avec la nature te rappelle que, oui, tu vis sur une île incroyable! C'est grandiose !" Lire la suite...
"Cette ville te surprend par son atmosphère un brin plus fraîche et par son paysage verdoyant à perte de vue.. que c'est beau!" Lire la suite...
"J'adore cette ville parce qu'elle est entourée de verdure.. on s'y sens bien à toutes les périodes de l'année" Lire la suite...