A vendre

Terrain 0 pièce 1700 m²

Punaauia

382 128 €

Annonce agence - Publié par Import E.

Informations
Mis à jour 19 sept. 2025
Disponibilité Non précisé
Référence VT210-TAHITITRANSAC
Contact
Gestionnaire du bien Autre
N° de téléphone gregory@tahititransactions.com
Email -
Contacter l'annonceur
Prendre rendez-vous

Partager sur les réseaux

Général

Prix de vente 382 128 €
Honoraires 4.83
Ville Punaauia
Surface 1700 m²
Toilette 89280008
Bilan énergetique
  • A
  • B
  • C
  • D
  • E
  • F
  • G

L'avis du professionnel

A VENDRE
45 600 000CFP

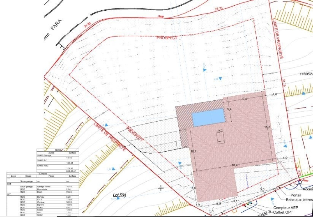
PUNAAUIA/Miri : Grand Terrain en pente de 1 700m² avec vue Moorea, pour caractéristique :
- Raccordé à l'Eau
- Compteur EDT installé
- Surface plane possible de 500m² après enrochement/mur de soutènement
- Deux ou Trois plateaux faisable selon projet
- Terrain picinable
***********************************************
Dans un lotissement prisé, terrain spacieux pouvant recevoir différent type de construction, selon votre budget, projet et terrassement souhaitée.
Complément de plan possible selon le projet estimé des propriétaires.
************************************************
Contacts et infos : Tahiti Transactions
Grégory 89 28 00 08
gregory@tahititransactions.com
http://www.tahititransactions.com


Avantages

  • Vue dégagée